Projektbeschreibung

 

 

Baugebiet : „Zum Feldlager“,

Vorstellung der Genossenschaftlichen Baugemeinschaft

 

Sehr geehrte Damen und Herren,

unser Büro hat bereits, von 2003 bis 2005, das erste Baugruppen-Projekt mit 16 Wohneinheiten realisiert. Von 2005 bis 2009 folgten drei weitere Baugruppen-Projekte mit insgesamt 54 Wohneinheiten.

Die Form der Initiative hat sich aus Erfahrungswerten gebildet. Das Büro hat sich aus technischen Gründen für die „Architekten-Initiative“ entschieden. Seit 1999 hat sich unser Büro mit der Realisierung von Baugruppen-Projekten beschäftigt. Leider haben sich die Baugruppen bei den technischen Planungsphasen meistens nicht einigen können. Durch das meist fehlende Fachwissen können die einzelnen Vorstellungen und Wünsche nicht konstruktiv und wirtschaftlich umgesetzt werden. Das Büro legt deswegen die Basis, für die technischen,baurechtlichen und genehmigungspflichtigen Randbedingungen, fest.

Der Vorteil der Architekten-Initiative liegt in der von Beginn an professionellen Erarbeitung des

Projekts für ein in der Regel bereits ausgewähltes Grundstück mit Kaufoption unter Berücksichtigung aller baurechtlichen und genehmigungstechnischen Randbedingungen.

Der Planungs- und Bauprozess wird straff, aber unter weitergehender Berücksichtigung individueller Realisierungswünsche organisiert. Nur dann können konkrete Kosten für das Projekt ermittelt werden und somit auch Interessenten geworben werden.

Die Genossenschaftsmitglieder werden über ein Homepage-Portal, Interessenten-pools und Anzeigen geworben.

Für die Genossenschaftsgründung ist im Vorfeld die Finanzierbarkeit und damit auch Planungsleistungen erforderlich. Vor allem in der Anfangsphase führt nur die Einbeziehung von Steuerberatern, Notare, Bänker und Projektberater, die zudem in der Lage sind, rechtliche und finanzielle Notwendigkeiten zu vermitteln und alle Beteiligten an den Entscheidungen zu beteiligen, zu einer zügigen Umsetzung und der notwendigen Akzeptanz bei Kreditinstituten, Behörden und Kostenträgern.

Genossenschaftliche Baugemeinschaft „Zum Feldlager“

Es werden verschiedene Wohnungsgrößen angeboten, die die individuellen sozialen und generationsübergreifenden Gegebenheiten berücksichtigen und sichern. Im Mittelpunkt des Projekts steht die Ermöglichung gemeinschaftlicher Strukturen. Ziel ist dabei eine Gemeinschaft, die nicht nur in sich als organisierte Nachbarschaft funktioniert, sondern auch, z.B. durch kulturelle Aktivitäten im Quartier sichtbar wird. Die Wohneinheiten sollen im Rahmen der Möglichkeiten flexibel für die Bewohnerinnen mit gestaltbar sein – gleichzeitig sind in der Planung gemeinschaftliche Räume enthalten, die gemeinschaftliches Kochen, Spielen, Musizieren, Kinderbetreuung(z.B. Tagespflege) und andere Aktivitäten, ermöglichen können.

 

 

Das satzungsgemäße Ziel der Wohngenossenschaft ist vorrangig eine gute, sichere und sozial vertretbare Wohnungsversorgung der Mitglieder der Genossenschaft. In den Wohnungen sollen Aspekte des generationengerechten Bauens überwiegend berücksichtigt werden. Die Wohnungen werden als abgeschlossene Wohneinheiten geplant.

Dauerwohnrecht nach WEG

Um eine Baufinanzierung sicherzustellen ist der Erwerb einer Genossenschaftswohnung durch unbefristete Dauerwohnrechte nach WEG sinnvoll, weil die zu gründende Genossenschaft kein Eigenkapital hat. Auch soll die Möglichkeit bestehen, bei Bedarf, die Wertanlage zu vererben.

Die Bewirtschaftung des Objektes wird durch Zahlung von Geldleistungen (gezeichnete Genossenschaftsanteile) sichergestellt.

Die Mieten decken die Bewirtschaftungskosten des Hauses und werden nicht automatisch der allgemeinen Mietentwicklung angepasst und dadurch in die Höhe getrieben. Aus der Miete werden die Kapitalkosten für die erforderlichen Kredite, die Instandhaltungskosten, die Verwaltungskosten und mögliche Mietausfälle finanziert.

Die Genossenschaft bietet den Nutzern und Nutzerinnen eine überschaubare Liegenschaft, in der eine Solidargemeinschaft angelegt ist. Vom Zusammenschluss zu einer Genossenschaft profitieren alle Mitglieder.

 

Besondere Aufmerksamkeit richtet sich auf das Zusammenleben der Generationen unabhängig von körperlichen Handicaps. Die Wohnungsgrößen sind flexibel gestaltbar

und können teilweise nach DIN 18040-2 (Behindertengerecht) geplant werden.

 

 

 

 

 

 

 

 

 

 

 

 

 

 

 

 

Baugebiet zum Feldlager „Grundstück“

Die Gründung einer Genossenschaft erfordert aufgrund bestimmter verfahrensrechtlicher Schritte

einen formellen Aufwand. So sind z.B. eine Satzung auszuarbeiten, eine Gründungsversammlung durchzuführen, ein Vorstand und ein Aufsichtsrat zu wählen sowie die Eintragung in das Genossenschaftsregister zu veranlassen.

Daher sollte eine Genossenschaftliche Baugemeinschaft mindestens 15 WE haben und darüber hinaus noch Räumlichkeiten für Gemeinschaftsräume und soziale Dienstleistungen aufweisen.

Für das Gebäude wird dann eine mindestens dreigeschossige Bauweise benötigt.

 

In dem Baugebiet „Zum Feldlager“ sind daher die Grundstücke, mit der Ausweisung WA 5, geeignet. Bei der Niederfeldstraße, Planstraße B und G, ist die Größe der ausgewiesenen Grundstücke ausreichend für ein Wohngenossenschaftliches Projekt.

Wolfgang Müller-Lohrengel

Architekt

 

Kuratoriumsmitglied der Eva-Meurer-Stiftung, Göttingen

Mitglied der Freien Altenarbeit e.V., Göttingen

Mitglied des Forum Gemeinschaftliches Wohnen e.V., Hannover

Genossenschaftsmitglied „Kassel im Wandel“ e. G., Kassel

 

        Grundriss Großes Mehrfamilienhaus


   - bitte auf Ansicht klicken für Vergrößerung -

Teil A:                                    Teil B:

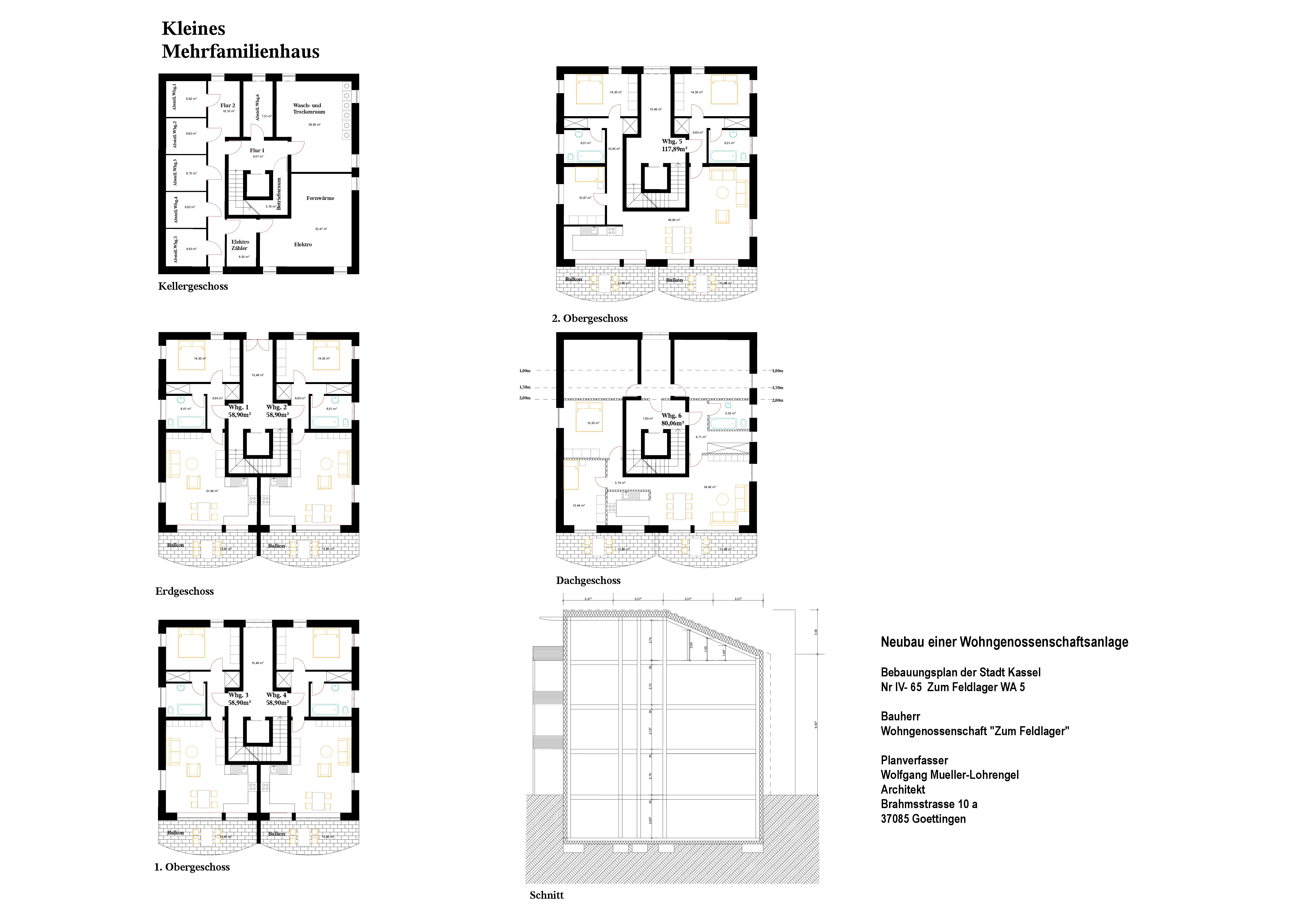
               Grundriss Kleines Mehrfamilienhaus

         - bitte auf Ansicht klicken für Vergrößerung -

Wohn-Nutz-Verkehrsflächen(DIN 277)
_________________________________________________________________________
Bauvorhaben :Errichtung eines Mehrfamilienhaus(Mehrgenerationenhaus)
_________________________________________________________________________
Zweckbestimmung :Wohnen
_________________________________________________________________________
Grundstück, Lage:Gemeinde Kassel,
Zum Feldlager Größe:m²
_________________________________________________________________________
Bauherr :Wohngenossenschaft „Zum Feldlager“
Planverfasser :Wolfgang Müller-Lohrengel,Architekt, Brahmsstr. 10a,
37085 Göttingen
_________________________________________________________________________
Nutzfläche Großes Mehrfamilienhaus
Kellergeschoss: Abstellräume
Whg. 1 6,03 m²
Whg. 2 6,03 m²
Whg. 3 5,55 m²
Whg. 4 6,09 m²
Whg. 5 6,19 m²
Whg. 6 6,10 m²
Whg. 7 6,00 m²
Whg. 8 6,11 m²
Whg. 9 6,00 m²
Whg. 10 6,00 m²
Whg. 11 6,50 m²
Whg. 12 6,06 m²
________________________________________
Abstellräume 72,36m²
Waschraum 12,34m²
Trockenraum 37,90m²
Betriebsraum (Fahrstuhl) 3,48m²
Fernwärmeraum 37,90m²
Fernwärme/Heizung 44,01m²
Elektroraum (Zähler) 18,88m²
Elektroraum (Batterie) 38,71m²
________________________________________
Nutzfläche KG Gesamt 265,50m²
Verkehrsfläche
Flur 1 23,69m²
Flur 2 12,71m²
Flur 3 23,69m²
Flur 4 12,71m²
_____________________________________
Verkehrsfläche KG Gesamt 64,12m²
1.
Wohn-Nutz-Verkehrsflächen(DIN 277)
Großes Mehrfamilienhaus
Wohnfläche Großes Mehrfamilienhaus
Erdgeschoss: Wohnfläche Terrasse/Balkon 25%
Whg. 1 80,22m² 3,45m²
Whg. 2 55,61m² 3,45m²
Gemeinschaftsfläche 153,17m² 7,44m²
____________________________________________________________
Wohnfläche EG 289,00m² 14,34m²
Wohnfläche EG Gesamt 303,34m²
Verkehrsfläche
Flur 1 23,78m²
Flur 2 11,88m²
_____________________________________
Verkehrsfläche EG Gesamt 35,58m²
1. Obergeschoss: Wohnfläche Terrasse/Balkon 25%
Whg. 1 80,22m² 3,45m²
Whg. 2 55,61m² 3,45m²
Whg. 3 55,61m² 3,45m²
Whg. 1 80,22m² 3,45m²
_______________________________________________________________
Wohnfläche 1.OG 271,66m² 13,80m²
Wohnfläche 1.OG Gesamt 285,46m²
Verkehrsfläche
Flur 1 23,78m²
Flur 2 11,88m²
Flur 3 11,88m²
_____________________________________
Verkehrsfläche 1.OG Gesamt 47,54m²
2. Obergeschoss: Wohnfläche Terrasse/Balkon 25%
Whg. 1 80,22m² 3,45m²
Whg. 2 55,61m² 3,45m²
Whg. 3 55,61m² 3,45m²
Whg. 1 80,22m² 3,45m²
_______________________________________________________________
Wohnfläche 2.OG 271,66m² 13,80m²
Wohnfläche 2.OG Gesamt 285,46m²
Verkehrsfläche
Flur 1 23,78m²
Flur 2 11,88m²
Flur 3 11,88m²
_____________________________________
Verkehrsfläche 2.OG Gesamt 47,54m²
2.
Wohn-Nutz-Verkehrsflächen(DIN 277)
Großes Mehrfamilienhaus
Dachgeschoss: Wohnfläche Terrasse/Balkon 25%
Whg. 1 101,12m² 6,90m²
Whg. 2 101,12m² 6,90m²
_______________________________________________________________
Wohnfläche DG 202,24m² 13,80m²
Wohnfläche DG Gesamt 216,04m²
Verkehrsfläche
Flur 1 6,38m²
_____________________________________
Verkehrsfläche DG Gesamt 6,38m²
Zusammenfassung Großes Mehrfamilienhaus
Wohnflächen EG 303,34m²
1.OG 285,46m²
2.OG 285,46m²
DG 216,04m²
______________________________________
Wohnfläche Gesamt 1.090,30m²
Nutzflächen KG 265,50m²
Wohnfläche Gesamt 1.090,30m²
______________________________________
Nutzflächen Gesamt 1.355,80m²
Verkehrsflächen KG 64,12m²
EG 35,58m²
1.OG 47,54m²
2.OG 47,54m²
DG 6,38m²
______________________________________
Verkehrsflächen Gesamt 171,16m²
3.

 

Wohn-Nutz-Verkehrsflächen(DIN 277)
Kleines Mehrfamilienhaus
Nutzfläche Kleines Mehrfamilienhaus
Kellergeschoss: Abstellräume
Whg. 1 6,62 m²
Whg. 2 6,62 m²
Whg. 3 5,70 m²
Whg. 4 6,62 m²
Whg. 5 6,93 m²
Whg. 6 7,51 m²
________________________________________
Abstellräume 40,00m²
Waschraum-
Trockenraum 28,80m²
Betriebsraum (Fahrstuhl) 3,76m²
Fernwärmeraum-
Elektro 32,47m²
Elektroraum (Zähler) 6,50m²
________________________________________
Nutzfläche KG Gesamt 111,53m²
Verkehrsfläche
Flur 1 8,07m²
Flur 2 18,10m²
_____________________________________
Verkehrsfläche KG Gesamt 26,17m²
Wohnfläche Kleines Mehrfamilienhaus
Erdgeschoss: Wohnfläche Terrasse/Balkon 25%
Whg. 1 58,90m² 3,49m²
Whg. 2 58,90m² 3,49m²
__________________________________________________________
Wohnfläche EG 117,80m² 6,98m²
Wohnfläche EG Gesamt 124,78m²
Verkehrsfläche
Flur 1 15,48m²
_____________________________________
Verkehrsfläche EG Gesamt 15,48m²
4.
Wohn-Nutz-Verkehrsflächen(DIN 277)
Kleines Mehrfamilienhaus
Wohnfläche Kleines Mehrfamilienhaus
1. Obergeschoss: Wohnfläche Terrasse/Balkon 25%
Whg. 1 58,90m² 3,49m²
Whg. 2 58,90m² 3,49m²
__________________________________________________________
Wohnfläche 1. OG 117,80m² 6,98m²
Wohnfläche 1.OG Gesamt 124,78m²
Verkehrsfläche
Flur 1 15,48m²
_____________________________________
Verkehrsfläche 1.OG Gesamt 15,48m²
2. Obergeschoss: Wohnfläche Terrasse/Balkon 25%
Whg. 5 117,89m² 6,98m²
_______________________________________________________________
Wohnfläche 2.OG 117,89m² 6,98m²
Wohnfläche 2.OG Gesamt 124,87m²
Verkehrsfläche
Flur 1 15,48m²
_____________________________________
Verkehrsfläche 2.OG Gesamt 15,48m²
Dachgeschoss: Wohnfläche Terrasse/Balkon 25%
Whg. 6 80,06m² 6,98m²
_______________________________________________________________
Wohnfläche DG 80,06m² 6,98m²
Wohnfläche DG Gesamt 87,04m²
Verkehrsfläche
Flur 1 7,80m²
_____________________________________
Verkehrsfläche DG Gesamt 7,80m²
5.
Wohn-Nutz-Verkehrsflächen(DIN 277)
Kleines/Großes Mehrfamilienhaus
Großes Mehrfamilienhaus
Wohnflächen EG 303,34m²
1.OG 285,46m²
2.OG 285,46m²
DG 216,04m²
______________________________________
Wohnfläche Gesamt 1.090,30m²
Nutzflächen KG 265,50m²
Wohnfläche Gesamt 1.090,30m²
______________________________________
Nutzflächen Gesamt 1.355,80m²
Verkehrsflächen KG 64,12m²
EG 35,58m²
1.OG 47,54m²
2.OG 47,54m²
DG 6,38m²
______________________________________
Verkehrsflächen Gesamt 171,16m²
Kleines Mehrfamilienhaus
Wohnflächen EG 124,78m²
1.OG 124,78m²
2.OG 124,87m²
DG 87,04m²
______________________________________
Wohnfläche Gesamt 461,47m²
Nutzflächen KG 111,53m²
Wohnfläche Gesamt 461,47m²
______________________________________
Nutzflächen Gesamt 573,00m²
Verkehrsflächen KG 26,17m²
EG 15,48m²
1.OG 15,48²
2.OG 15,48m²
DG 7,80m²
______________________________________
Verkehrsflächen Gesamt 80,41m²
6.
Wohn-Nutz-Verkehrsflächen(DIN 277)
Kleines/Großes Mehrfamilienhaus
Zusammenfassung
Wohnflächen Gesamt
Großes Mehrfamilienhaus
Wohnfläche Gesamt 1.090,30m²
Kleines Mehrfamilienhaus
Wohnfläche Gesamt 461,47m²
___________________________________________
Wohnfläche Gesamt 1.551,77m²
Nutzflächen Gesamt
Großes Mehrfamilienhaus
Nutzflächen Gesamt 1.355,80m²
Kleines Mehrfamilienhaus
Nutzflächen Gesamt 573,00m²
__________________________________________
Nutzfläche Gesamt 1.928,80m²
Verkehrsflächen Gesamt
Großes Mehrfamilienhaus
Verkehrsflächen Gesamt 171,16m²
Kleines Mehrfamilienhaus
Verkehrsflächen Gesamt 80,41m²
_________________________________________
Verkehrsfläche Gesamt 251,57m²
Aufgestellt am 19.11.2018
7.

Kostenschätzung Din 276
_________________________________________________________________________
Bauvorhaben :Errichtung eines Mehrgenerationen-Projekt
_________________________________________________________________________
Zweckbestimmung :Wohnen
_________________________________________________________________________
Grundstück, Lage:Gemeinde Kassel,
Zum Feldlager Größe:ca.1.833 m²
_________________________________________________________________________
Bauherr :Wohngenossenschaft „Zum Feldlager“
c/o Wolfgang Müller-Lohrengel
Brahmsstr. 10 a, 37085 Göttingen
Planverfasser :Wolfgang Müller-Lohrengel,Architekt, Brahmsstr. 10a,
37085 Göttingen
_________________________________________________________________________
Gebäudeformen : Rechteckig
_________________________________________________________________________
Brutto-Geschossfläche; BGF 2.937 m² x 1.210.-€ = 3.553.377.-€/m²
Brutto-Rauminhalt:BRI 8.740 m³ x 385.-€ = 3.364.900.-€/m²
Nutzfläche:NUF 1.928 m² x 1.770.-€ = 3.412.560.-€/m²
Wohnfläche 1.551 m² x 2.100.-€ = 3.357.100.-€/m²
Interpolation: 3.553.377.-€ - 3.357.100.-€= 196.277.-€ : 2 = 98.138.-€
3.357.100.-€ + 98.138.-€ = 3.455.238.-€
Regionalfaktor Kassel:0,989 = 3.455.238.-€ x 0,989= 3.417.723.-€
Baukosten 3.417.723.-€
Verwendete Unterlagen:
Pläne, Berechnungen nach BKI Baukosten Gebäude Neubau 2018,
Baukosteninformationzentrum Deutscher Architektenkammer GmbH,
Mehrfamilienhäuser, Passivhäuser, Seite 578
Kostengruppen Betrag €
100 Grundstück 1.833 m²x 250.-€ = 458.250.-€
_________________________________________________________________________
200 Herrichten und Erschließen (1,0 % von 3.417.723.-€) 34.177.-€
300 Bauwerk-Baukonstruktion Rohbau (78,5% von 3.417.723.-€)2.700.671.-€
400 Bauwerk-Ausbau (21,6% von 3.417.723.-€) 738.228.-€
_________________________________________________________________________
500 Außenanlagen (4,1 % von 3.417.723.-€) 140.126.-€
_________________________________________________________________________
600 Ausstattung und Kunstwerke Küche, Büro, 60.000.-€
700 Baunebenkosten(Ingenieure,Behördliche Gebühren,
Gutachten, Bauherrennebenkosten.
Seite 80,BKI 18% von 300-600
655.024.-€
Gesamtkosten(Brutto) 4.786.476.-€
Aufgestellt am 19.11.2018
Kostenschätzung Din 276
_________________________________________________________________________
Bauvorhaben :Errichtung eines Mehrfamilienhaus
(Mehrgenerationenen-Haus)
_________________________________________________________________________
Zweckbestimmung :Wohnen
_________________________________________________________________________
Grundstück, Lage:Gemeinde Kassel,
Zum Feldlage Größe:ca.1.833 m²
_________________________________________________________________________
Bauherr :Wohngenossenschaft „Zum Feldlager“
Planverfasser :Wolfgang Müller-Lohrengel,Architekt, Brahmsstr. 10a,
37085 Göttingen
_________________________________________________________________________
Kosten der Wohnungen:
Die Kosten der Wohnungen werden über die Wohnfläche ermittelt.
_______________________________________________________________________________________
Gesamtkosten 4.786.476.- € : 1.551m² (Wohnfläche mit 25% Balkone/Terrassen)= 3.086.-€/m²
Kostenaufstellung der Wohnungen:
Großes Haus, 12WE, Gemeinschaftsanlage
Gemeinsch.Anlage 160,61m² x 3.086.-€= 595.642.-€
Wohnung 1 83,67m² x 3.086.-€= 258.205.-€
Wohnung 2 59,06m² x 3.086.-€= 182.259.-€
Wohnung 3 83,67m² x 3.086.-€= 258.205.-€
Wohnung 4 59,06m² x 3.086.-€= 182.259.-€
Wohnung 5 59,06m² x 3.086.-€= 182.259.-€
Wohnung 6 83,67m² x 3.086.-€= 258.205.-€
Wohnung 7 83,67m² x 3.086.-€= 258.205.-€
Wohnung 8 59,06m² x 3.086.-€= 182.259.-€
Wohnung 9 59,06m² x 3.086.-€= 182.259.-€
Wohnung 10 83,67m² x 3.086.-€= 258.205.-€
Wohnung 11 108,02m² x 3.086.-€= 333.349.-€
Wohnung 12 108,02m² x 3.086.-€= 333.349.-€
_______________________________________________
Kleines Haus, 6WE,
Wohnung 1 62,39m² x 3.086.-€= 192.535.-€
Wohnung 2 62,39m² x 3.086.-€= 192.535.-€
Wohnung 3 62,39m² x 3.086.-€= 192.535.-€
Wohnung 4 62,39m² x 3.086.-€= 192.535.-€
Wohnung 5 124,87m² x 3.086.-€= 385.348.-€
Wohnung 6 87,04m² x 3.086.-€= 268.605.-€
Aufgestellt am 19.11.2018

 
   

 

 

 

 

 

 

Wir nutzen Cookies auf unserer Website. Einige von ihnen sind essenziell für den Betrieb der Seite, während andere uns helfen, diese Website und die Nutzererfahrung zu verbessern (Tracking Cookies). Sie können selbst entscheiden, ob Sie die Cookies zulassen möchten. Bitte beachten Sie, dass bei einer Ablehnung womöglich nicht mehr alle Funktionalitäten der Seite zur Verfügung stehen.